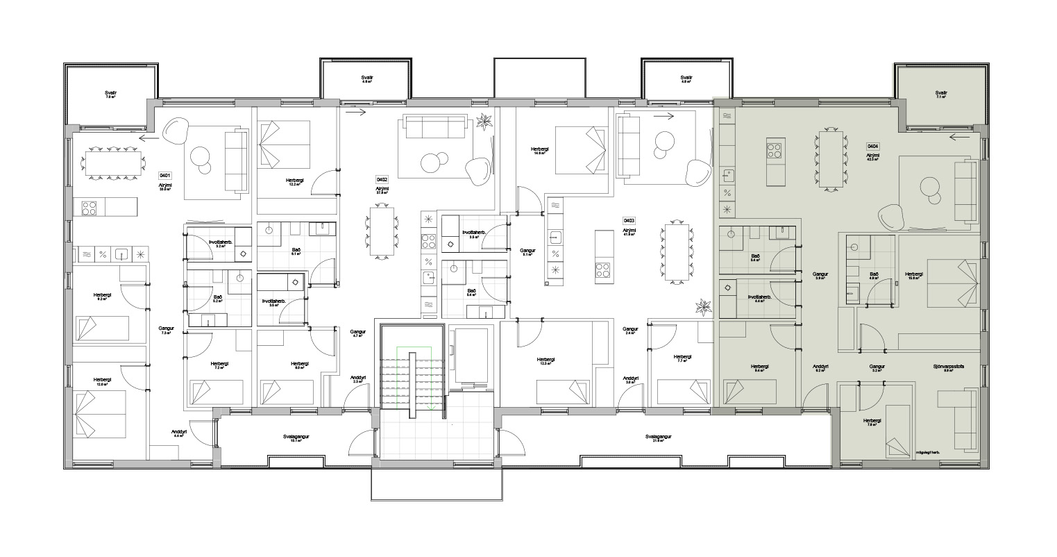
Lækjarmói 8 · Íbúð 404
Hæð:
4. hæð
Stærð:
155.2 m²
Bílastæði:
Stæði B27
Tegund:
4ra herbergja
Verð:
144.900.000
Lýsing
Bjartar og vandaðar íbúðir með frábæru útsýni
Vel skipulögð og falleg 4ra-5 herbergja íbúð. Íbúðin er hönnuð með áherslu á gæði, birtu og lægri rekstrarkostnað. Aukin lofthæð er á efstu hæð hússins, hljóðdempandi loftadúkur er í alrými og óbein lýsing á völdum stöðum innan íbúðar.
Alrými: Stofa og eldhús mynda samfellda heild þar sem gólfsíðir gluggar tryggja bjartara rými. Óbein lýsing er á völdum stöðum í alrými. Útgengt er á svalir um rennihurð.
Eldhús: Sérsmíðuð innrétting frá TAK og heimilistæki frá AEG fylgja (span-helluborð, vifta og ofn).
Svefnherbergi: Öll með sérsmíðuðum fataskápum frá TAK.
Baðherbergi: Sérsmíðuð innrétting frá TAK. Flísalagt í hólf og gólf.
Þvottaherbergi: Flísalagt gólf.
Gæði, tækni og þægindi
Aukin lofthæð: Aukin lofthæð er í allri íbúðinni.
Óbein lýsing: Óbein lýsing er á völdum stöðum innan íbúðar.
Loftgæði: Vélrænt loftskiptikerfi með varmaendurvinnslu er í hverri íbúð. Búnaðurinn tryggir ferskt loft allan sólarhringinn, minna ryk og lægri hitunarkostnað.
Hljóðvist: Hljóðdempandi loftadúkur er í alrými íbúðar. Hljóðdempandi loftaplötur í öðrum rýmum, fyrir utan baðherbergi og þvottahús. Vandað vinyl parket tryggir bætta hljóðvist.
Gólfhiti: Gólfhiti er í öllum íbúðum.
Tengingar: Ljósleiðari og mynddyrasími fylgir.
Geymsla: Sérgeymsla í kjallara fylgir öllum íbúðum. Sameiginleg hjóla- og vagnageymsla er í kjallara.
Bílageymsla: Rúmgóð bílastæði fylgja, sjá nánar á söluyfirliti eigna.
Lyfta: Lyfta er í sameign.
Staðsetning: Staðsett í nýju íbúðarhverfi, Móahverfi. Stutt er í verslun og þjónustu. Við skipulag hverfisins var áhersla lögð á góðar tengingar gangandi og hjólandi innan hverfisins, og við aðliggjandi hverfi og útivist.
Samantekt • Vandaðar sérsmíðaðar TAK innréttingar • Bjartari íbúðir með gólfsíðum gluggum • Bætt hljóðvist með hljóðdempandi plötum í lofti • Vélrænt loftskiptikerfi og gólfhiti sem tryggir lægri rekstrarkostnað • Lyfta og bílakjallari
Skipulag

Staðsetning á hæð

Staðsetning á bílastæði & geymslu


Eignaver fasteignasala
Fasteignasalar
Arnar Birgisson
Framkvæmdastjóri, löggiltur fasteignasali. Eigandi.
Sími: 898-7011
Netfang: arnar@eignaver.is
Tryggvi Gunnarsson
Löggiltur fasteignasali og löggiltur leigumiðlari
Sími: 862-7919
Netfang: tryggvi@eignaver.is
Skrifstofa
Hafnarstræti 97
600 Akureyri
Kennitala 631097-3759
www.eignaver.is

FS fasteignir ehf.
Fasteignasalar
Friðrik Sigþórsson
Löggiltur fasteignasali
Sími: 694-4220
Netfang: fridrik@fsfasteignir.is
Svala Jónsdóttir
Löggiltur fasteignasali
Sími: 663-5260
Netfang: svala@fsfasteignir.is
Skrifstofa
Glerárgata 36 · 3. hæð
600 Akureyri
Kennitala
561123-2250
www.fsfasteignir.is








